Ampio trilocale in residence con piscina - Lazise (ref.2161)

Trilocale con giardino a Lazise, a breve distanza dal centro, in residence con piscina, luminoso al piano terra

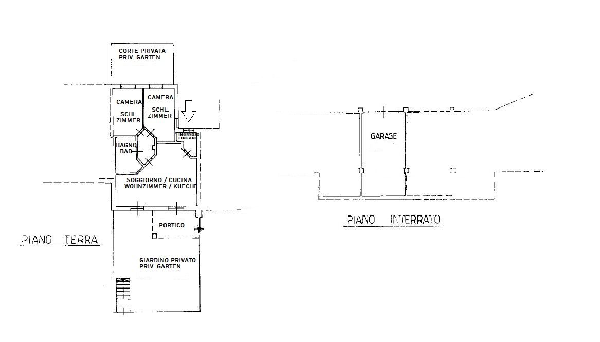
In piccolo e grazioso contesto residenziale con piscina, a poca distanza dal centro storico di Lazise, vendesi luminoso appartamento trilocale con doppio giardino. Disposizione: Piano terra: Ingresso, ampio soggiorno/pranzo con angolo cottura e accesso alla veranda e giardino di generose dimensioni, due camere doppie, bagno con doccia e angolo lavanderia. Sul retro è presente un'ulteriore spazio esterno esclusivo di circa 10 m2. Ampio box e cantina al piano interrato. Ottima soluzione per la propria casa vacanza al lago. Classe Energetica:

Maggiori informazioni?

Telefonaci +39 045 62.12.610
oppure compila la richiesta:



.